10x10 shed plans blueprints

| |




10x10 shed plans blueprints




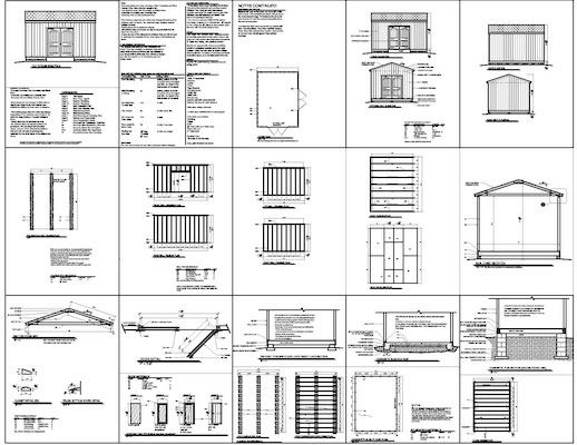
Plan # 2427 is shown. these barn blueprints allow you to build on a concrete slab or a wooden floor supported on skids see our free on line. How to build a shed, colonial-style. a colonial-style storage shed that anyone can build.. Easy and fun to use storage shed plans for building garden sheds, playhouses, tiny houses, chicken coops and more..




Free 10x10 Shed Plans Blueprints by 8'x10'x12'x14'x16'x18'x20 ...

Free 10x10 shed plans blueprints by 8'x10'x12'x14'x16'x18'x20



10x10 Hip Roof Shed Plans How to Build DIY by ...

10x10 hip roof shed plans how to build diy by



... Shed Plans - How to learn DIY building Shed Blueprints - Shed Plans

... shed plans - how to learn diy building shed blueprints - shed plans



plans free shed designs plans free storage shed designs shed plans ...

Plans free shed designs plans free storage shed designs shed plans


Diy gable garden/storage shed plans. detailed step-by-step instructions from start to finish.. Http://bit.ly/4freeplans - how to build a shed the fast and easy way, using a free set of plans. click the url for a free set of easy plans and have that. Plan # 3342 is shown. these storage shed blueprints allow you to build on a concrete slab see our free on line construction guide for more.




Related Posts by Categories

0 komentar:

Posting Komentar